中
EN
首页
易唐简介
设计案例
联系我們
中
EN
扫码添加企业微信
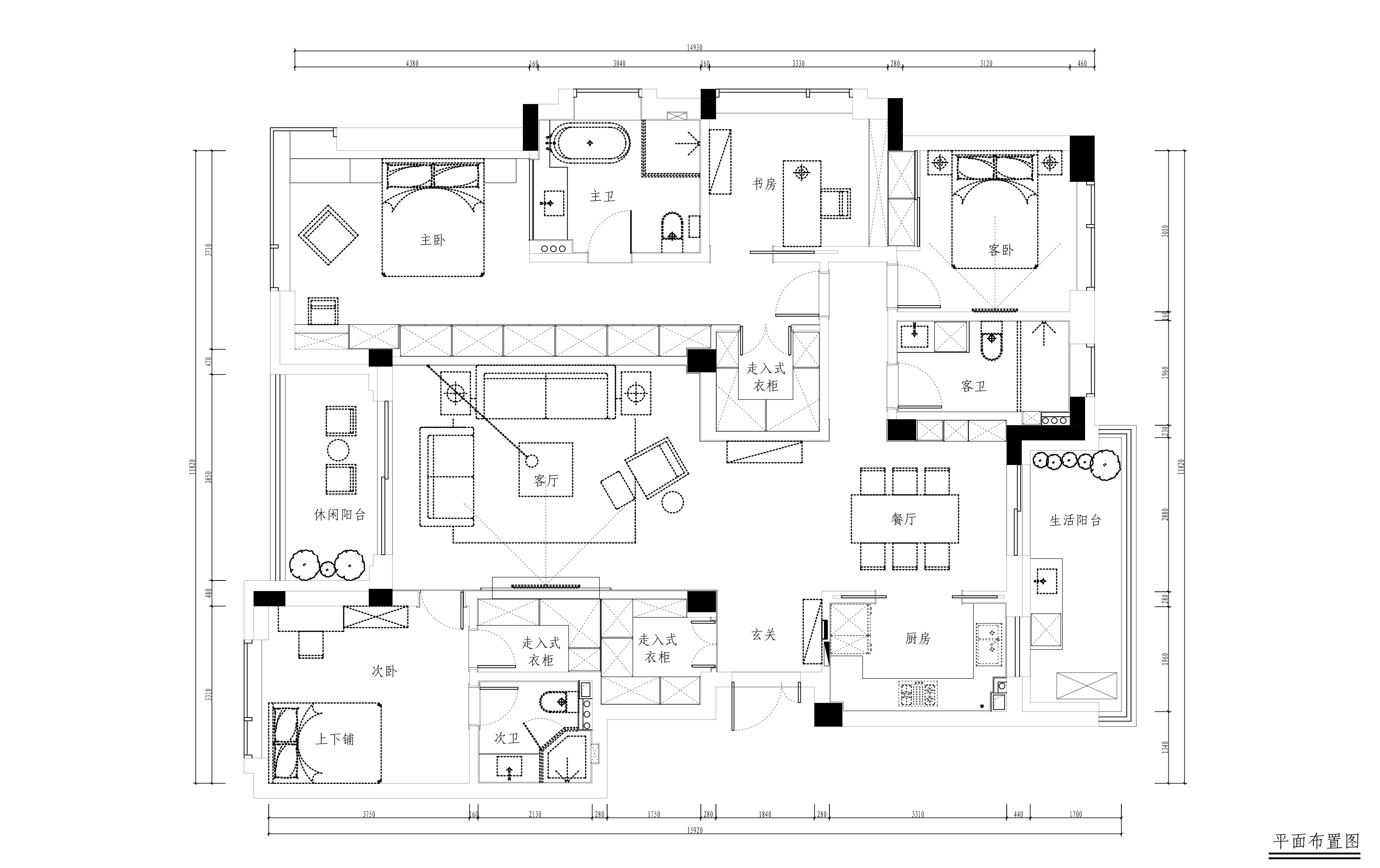
天河国际现代家装
轻倚岁月,浅读流年
静许,一份禅意
人生安暖,一份清浅
时光无恙,岁月静好
天河国际现代家装
< 返回
粤ICP备2021078705号